Calvert Wright Architecture // Team – C. Wright
New York, NY // May 2023 – April 2024
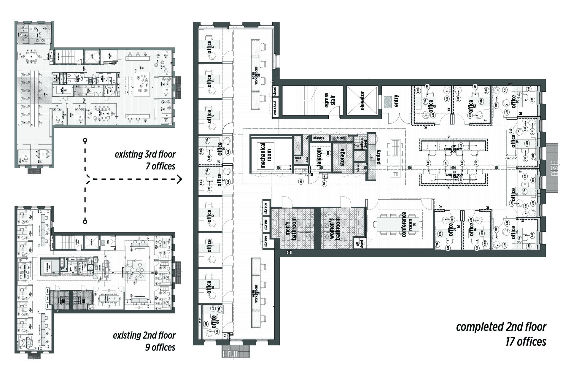
This fast-track commercial interior renovation consolidated 22,SOOsf of workspace into a single 11,250sf floor for the HBO film production company, Anonymous Content. To address changes in post-COVID office utilization, this floor significantly increased the number of private office spaces and facilitates collaborative work both in-person and remote.
My responsibilities as project manager included coordination of design team and bicoastal
stakeholders from planning through construction and project closeout, including all regulatory approvals (Department of Buildings, Landmarks, FDNY).



