Calvert Wright Architecture // Team – C. Wright, M. Pinilla
New York, NY // September 2021 – May 2023
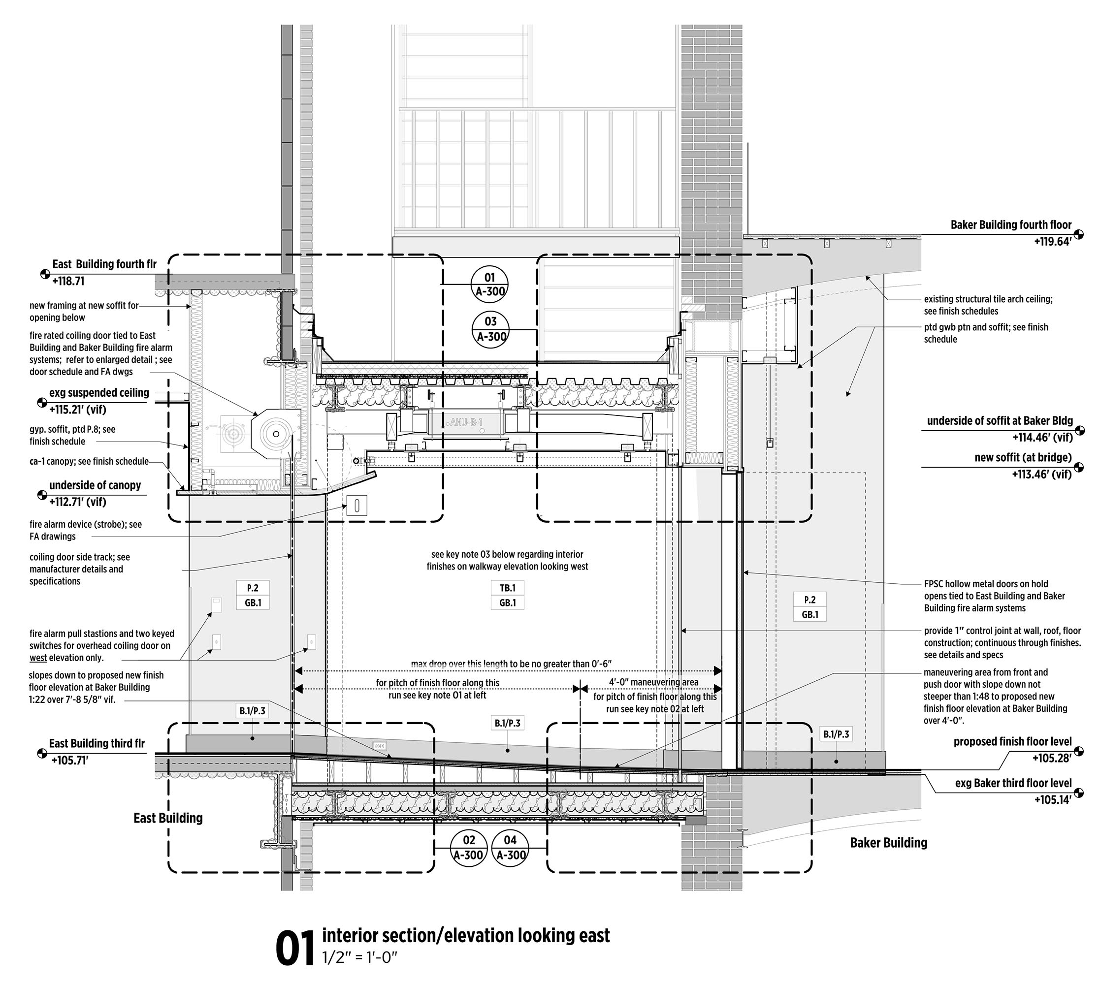
The Baker Walkway was completed in 2023 as the first phase of a $40m renovation to connect the Baker Theater Building to the East 68th Street campus at Hunter College. This 10′-0″ wide elevated walkway is a continuation of the existing sky bridges that define this densely populated urban campus. Serving as the new entry to the building, classrooms were converted to a student lounge, peeling away plaster to reveal the original Guastavino shallow vault ceiling dating to the 1890s. This project required coordination between multiple city and NYState agencies including; CUNY, DASNY, NYC LPC, and NYS SHPO.
My responsibilities as project manager included management and design coordination during construction to reconcile historic building assemblies with the proposed new walkway.





