Gans & Company // Design Team – Deborah Gans (principal)
Brooklyn, NY // February 2018 – Summer 2019
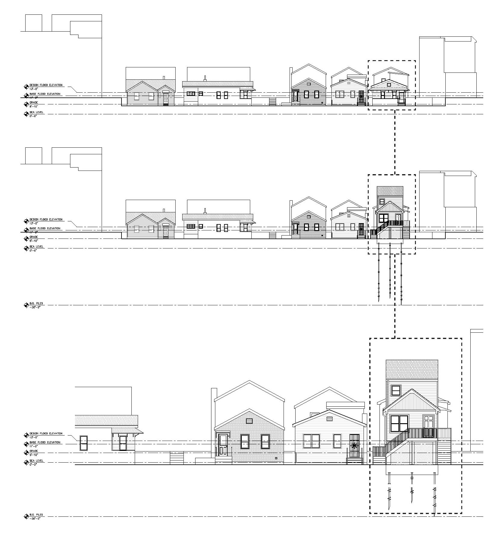
This home was the last Build-it-Back home assigned to Gans & Co in Brooklyn, and the first to utilize podium construction (a hybrid of steel and wood framing) to meet the restrictions of building in the fire district. Operating within the tight constraints of Built-it-Back, we were able to design a cathedral ceiling for the living room and an integrated front overhang at the home’s entrance. Flood zone restrictions required the home to be elevated 7’ off of the ground, and determined material use and plumbing infrastructure below the Design Flood Elevation. Poor soil conditions required the use of helical piles to support the concrete foundation.
In my role as project architect, I led this house through schematic design & homeowner approval, construction documentation and NYC Department of Buildings approval, cost estimation and BSA hearings, and finally construction services (site visits, submittals, requests for information).





